Aktuelles
-

12.05.2026Sichtungen melden, Einfangversuche unterlassen: Angsthund aus Tierheim entlaufen
Am Sonntagabend ist eine Hündin, die sich noch nicht lange im Weimarer Tierheim befindet, durch die Zwingertür entwischt und konnte vom Tierheimgelände entweichen. Seit einer Sichtung beim Nachbarn kurz darauf, fehlt jede Spur von ...
[mehr] -

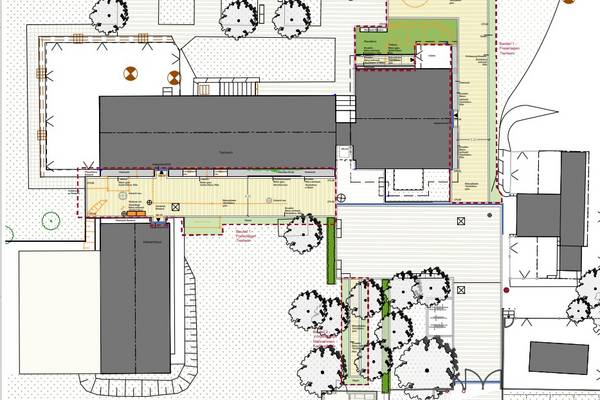
31.03.2026Nächste Bauabschnitte im Weimarer Tierheim beginnen
Die Stadt Weimar setzt die bauliche Weiterentwicklung im städtischen Tierheim fort. Im Fokus stehen dabei die Verbesserung der Zugänglichkeit sowie vorbereitende Maßnahmen für ein geplantes Kadaverhaus. Der nächste ...
[mehr] -

03.02.2026Hundewelpe auf dem Weg der Besserung
Der Husky-Welpe, der am 26. Januar 2026 verletzt in einer Tierarztpraxis behandelt wurde, ist mittlerweile wieder sehr agil und seine Wunden heilen sehr gut. Die Pflegestelle, die den kleinen Rüden betreut und sich liebevoll um ihn ...
[mehr] -

02.02.2026Spendenübergabe an das Tierheim
Am 31. Januar 2026 übergab José Peisler dem Tierheim Weimar eine Spende in Höhe von 555 Euro. Die Spendensumme stammt aus den Erlösen zweier von ihm gestalteter Malbücher, die im Rahmen eines kreativen Nebenprojekts ...
[mehr] -

30.01.2026Hundewelpe gefunden: Veterinäramt bittet um sachdienliche Hinweise zum Halter
+++ Update vom 02. Februar 2026+++
[mehr] -

17.12.2025Vermittlungsstopp im Tierheim Weimar
Haustiere sind keine Weihnachtsgeschenke! Darum gilt ab sofort ein Vermittlungsstopp im Weimarer Tierheim.
[mehr] -

15.12.2025Spende für das Weimarer Tierheim
Das Tierheim der Stadt Weimar in der Berkaer Straße kann sich über eine Spende in Höhe von 2.000 Euro freuen. Die finanzielle Unterstützung kommt vom Berliner Unternehmen SSS Schneider & Sohn Spezialbau. Mit dem Geld, das ...
[mehr] -

18.08.2025Tag der offenen Tür im Tierheim war voller Erfolg
Die Stadtverwaltung Weimar - Abteilung Tierheim - in enger Zusammenarbeit mit der Tierheimhilfe Weimar e. V., hatten am 17. August 2025 ins Tierheim Weimar zum Tag der offenen Tür geladen.
[mehr] -

08.08.2025Neues Freigehege für Landschildkröten im Tierheim Weimar in Betrieb
Das Tierheim Weimar in der Berkaer Straße hat ein neues Freigehege für Landschildkröten in Betrieb genommen. Die Anlage bietet auf rund 25 Quadratmetern einen naturnahen Lebensraum, der den besonderen Bedürfnissen der Tiere ...
[mehr] -

08.08.2025Katzenwelpen in Legefeld ausgesetzt
Am Montag, 4. August 2025 entdeckte gegen 21 Uhr eine Spaziergängerin am Feldweg des Gewerbegebiets „An dem Holzdorfer Feld“ vier neugeborene Katzenwelpen. Sie informierte umgehend den Tierschutzverein Weimar e.V. Die Tiere ...
[mehr]
